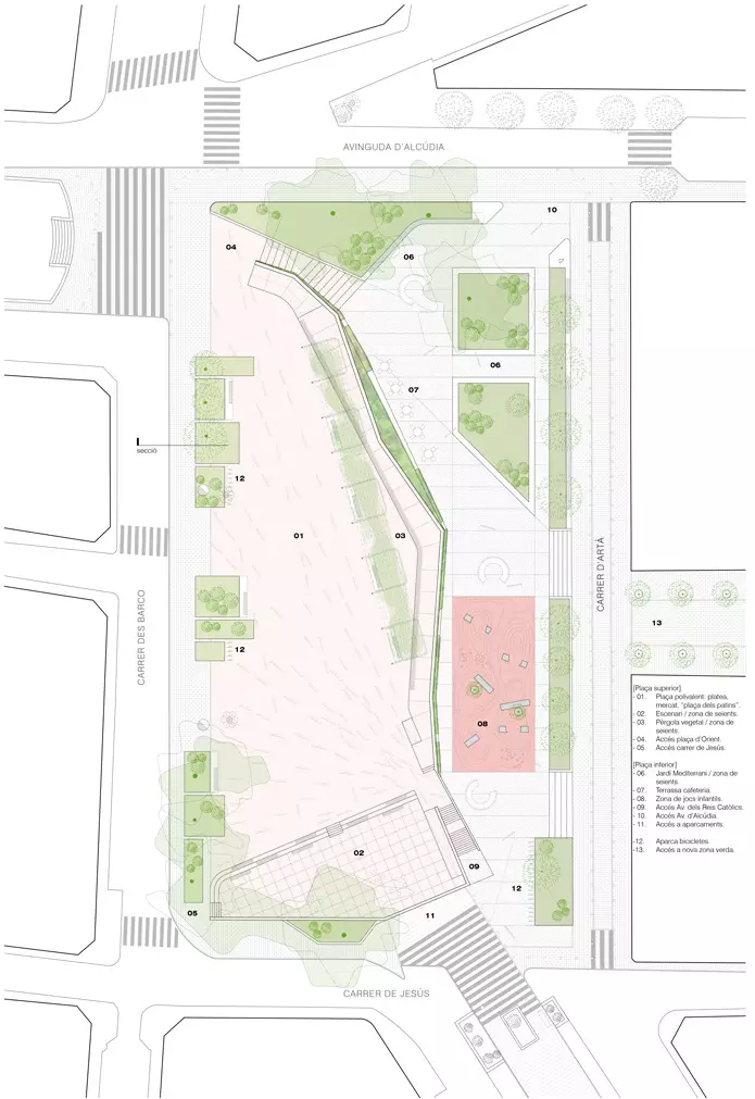
Para muchos habitantes de Inca, la Plaça Mallorca también era conocida como la «plaza de los pinos» o la «plaza de los patines». La antigua Plaça Mallorca, demolida en 2004, no tenía un valor arquitectónico destacable, pero sí un ambiente muy apreciado por los vecinos. En comparación con el proyecto construido después de 2004, ha sufrido el efecto de la desertificación. La antigua plaza contaba con numerosos pinos de gran tamaño en su perímetro, acompañados de una cubierta vegetal que rodeaba el centro de la plaza, donde era posible patinar o disfrutar de las fiestas.
Además de los requisitos lógicos de este proyecto de renovación, con nuestra propuesta pretendemos recuperar el ambiente de la «plaza de los pinos» y la «plaza de los patines»: un espacio verde con abundante vegetación, con cómodas zonas de descanso a la sombra de los grandes pinos y una amplia zona donde se pueda patinar o disfrutar de una noche de verbena.

No Comments